Arquitecto: Federico Somolinos Cuesta
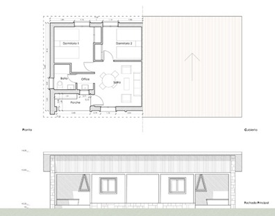
Subtipo A1
Edificio de dos plantas en la que la superior se retrasa para formar una terraza alargada. Existe cierta desproporción entre ambas plantas, siendo la superior más ancha y alta que la inferior. En el centro se marca la división de las viviendas y las terrazas mediante un gran machón de piedra de dos tramos. Los accesos se efectúan por los laterales, dejando la fachada principal un ventanal corrido para la salita y el office. La planta baja se completa con el baño. En la parte superior se encuentran las habitaciones y la terraza a la que se accede desde el distribuidor.
Dibujos del folleto promocional de 1956. Fuente: Biblioteca de Asturias
Situación
|
Habitaciones: 2
Planta y alzado. Ver en 3D
Subtipo A2
Similar a A1, pero con mayor fondo y huecos más grandes en la terraza superior, compartidos por las dos habitaciones. Machón central sólo desarrollado en la fachada delantera.
Situación
|
Habitaciones: 2
Planta y alzado. Ver en 3D

